ecole danse musique blanquefort

Extension école de musique et danse, Blanquefort (33)

  • Année 2011
  • Programme Extension de l’école de musique
  • Client Commune de Blanquefort
  • Statut Concours non retenu
  • Surface 500 m²
  • Coût 700 000 € HT
  • Localisation Blanquefort, France

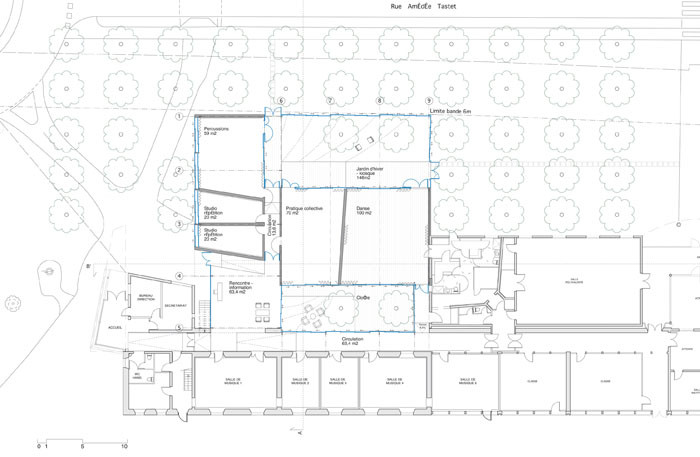
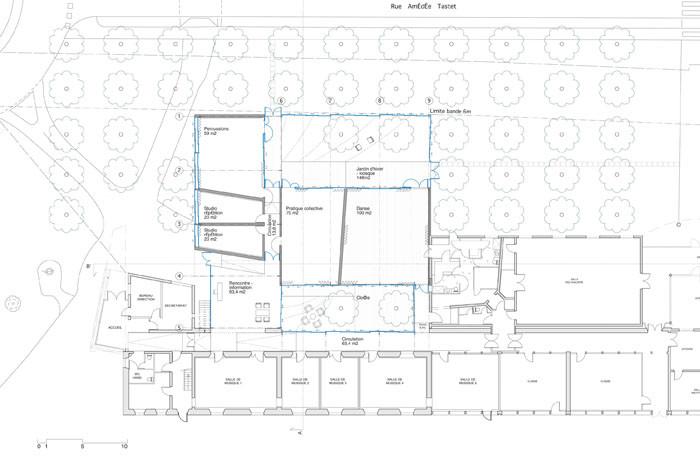
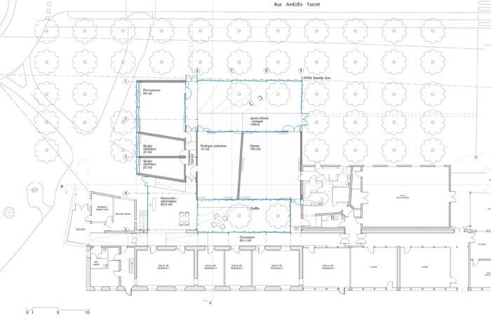
Le projet d’extension de l’école de Blanquefort est conçu autour de trois pôles majeurs : rencontre, musique et danse.
Il s’agit d’assurer la mixité et la diversité des pratiques dans un même lieu, tout en décloisonnant les styles et en s’ouvrant à un large public. En considérant que l’émotion, le plaisir, la poésie et l’improvisation ont leur place dans une école de musique.
Le projet s’implante sur l’emprise au sol maximale définie par le corps principal de l’école. Le pôle danse, à proximité de la salle de danse existante, et les pôles musique sont regroupés autour d’un jardin intérieur, d’un point rencontre-information et d’un kiosque jardin d’hiver.
Ces espaces dédiés à l’improvisation permettent d’une part des apports solaires pour les nouvelles salles orientées nord, d’autre part l’extension des activités de l’école et l’apparition de nouvelles pratiques artistiques.