











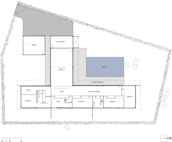
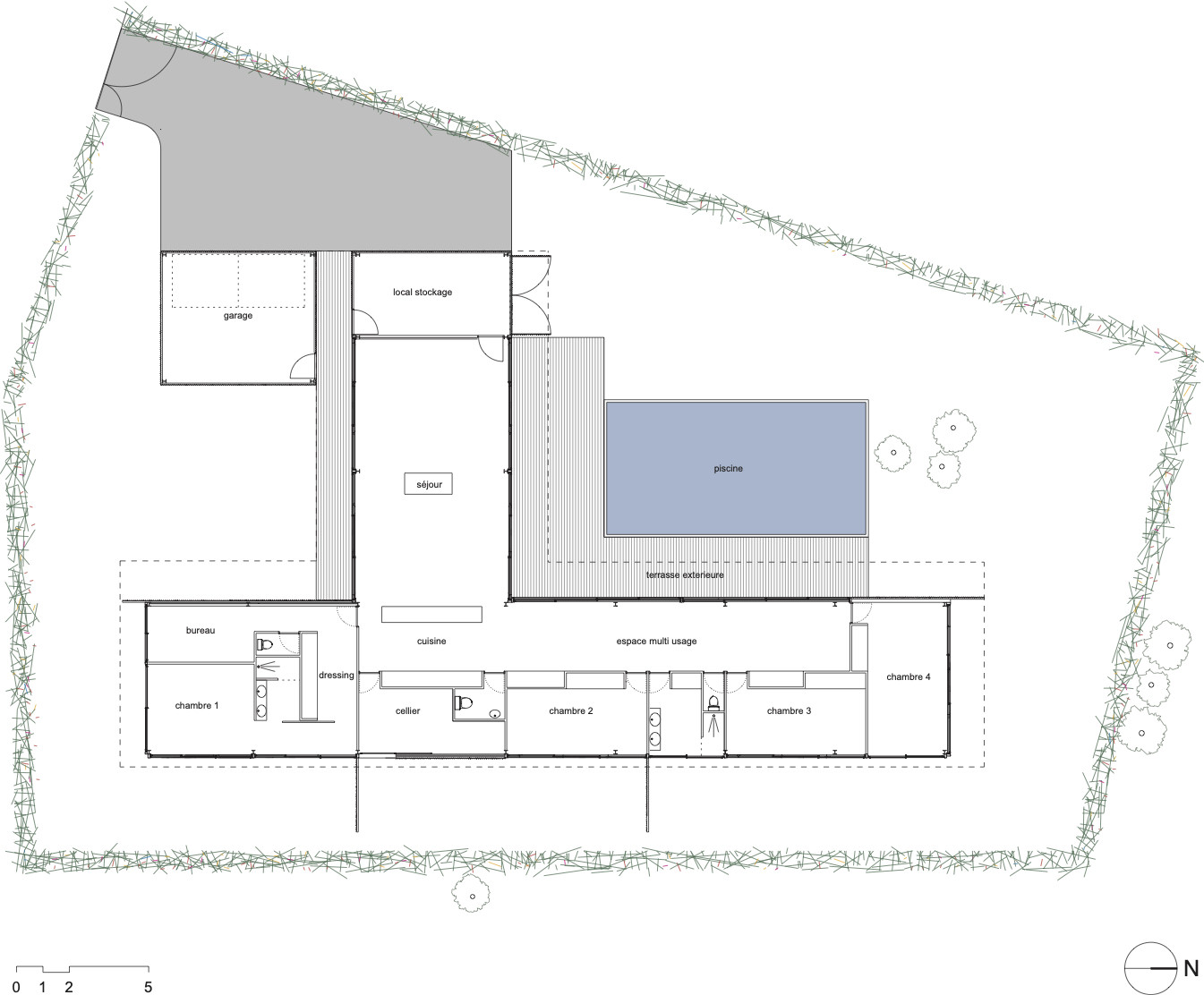
Le projet s’implante dans une parcelle de lotissement, un paysage plat, a priori sans qualité remarquable. L’idée est d’investir le terrain dans sa totalité, en considérant que la limite de propriété sera celle de la maison. Le projet se réfère directement aux « case study houses » américaines. La maison est de plain-pied, totalement vitrée avec de grands débords de toit. La structure est métallique et finement travaillée. Les fondations en pieux métalliques battus sortent du sol et viennent à trois mètres de haut porter la charpente. L’agencement des espaces sur la parcelle assure l’intimité de chaque pièce, de façon indépendante et sans vis-à-vis.