Florence House, Johannesburg, South Africa

  • Year 2011
  • Program Transformation project
  • Architects Ateliers Learning from (ENSA Toulouse) - Christophe Hutin, Daniel Estevez
  • Location Hillbrow, Johannesburg, South Africa

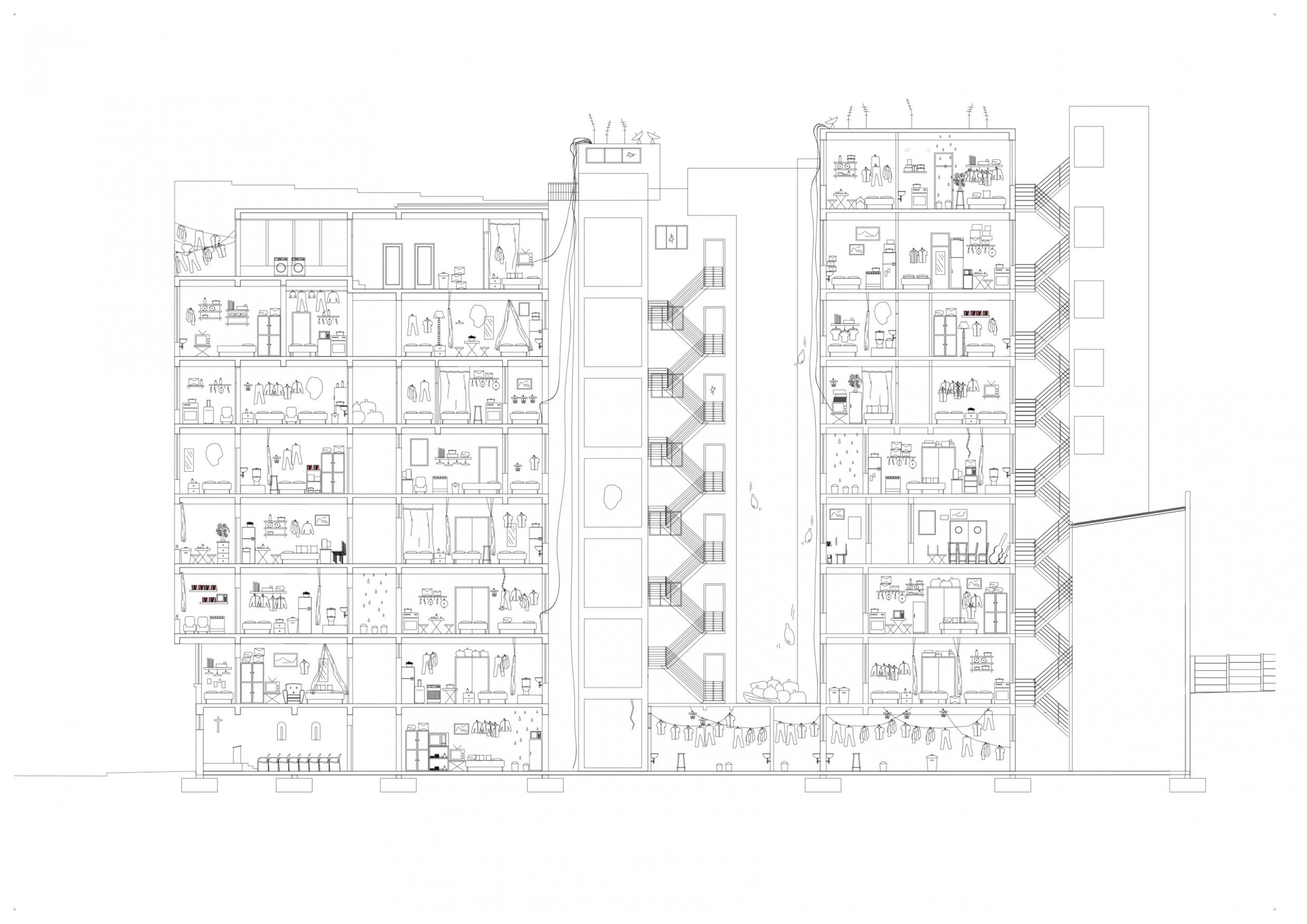
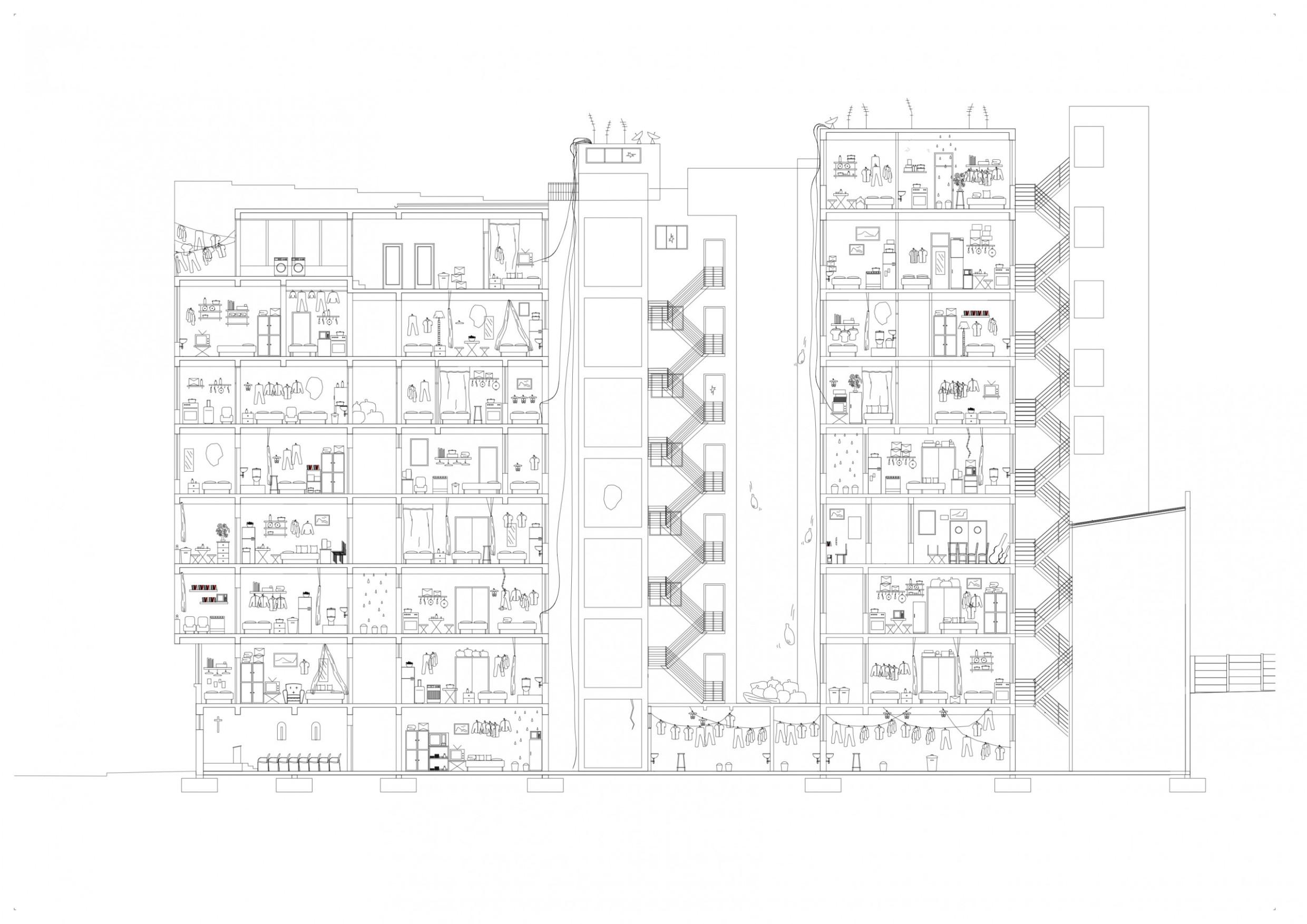
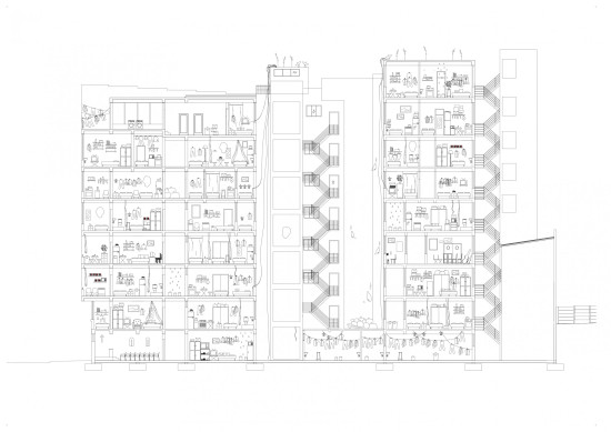
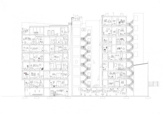
In Johannesburg’s central district of Hillbrow, hundreds of vacant abandoned buildings are occupied by the city’s poorest inhabitants. This critical and often conflictual urban context also reflects great human energy. This dense and active neighborhood could be the model for intense urban, economic, and cultural development in the future. French and South African architecture students worked here during an international workshop organized in the framework of the “Learning From” 2011 master’s program at the Toulouse School of Architecture. They worked on the case of a former hospital, the Florence House, now disused and spontaneously occupied by 247 families without any major conversion. The inhabitants live here with great intelligence and very little means, and the building, despite its poor living conditions is in its own way a lesson in both the collective and individual appropriation of architecture. To be effective in this environment, the crucial question is context. Survey the sites with precision, make an inventory of individual situations, understand how it is used, meet the people, and speak together: this rehabilitation project is first a collective inventory of all existing resources. Understand what is already there and then support, improve, augment, and intensify it. Room by room, place by place, the transformations of the space carried out by the inhabitants themselves gradually reveal the social anatomy of Florence House.