













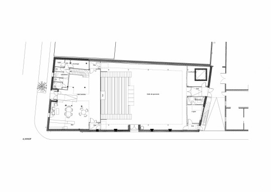
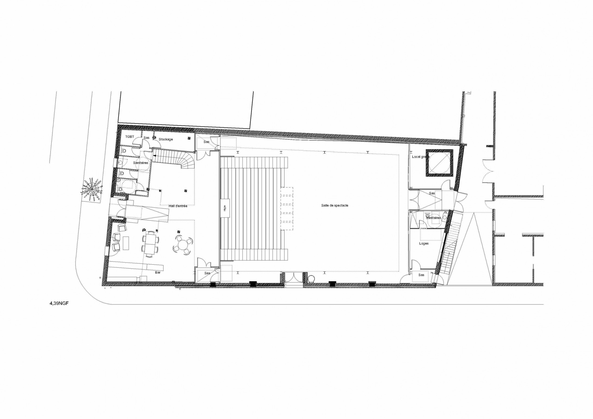
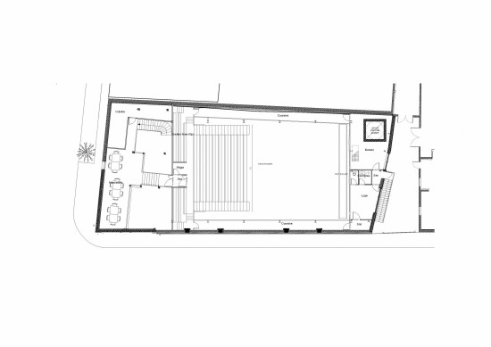
Stemming from the Sigma festival, the Glob theater has been housed in a former industrial building in the rue Joséphine for the past 25 years. It is currently a key independent venue for artistic production and performance in Bordeaux. The theater’s team has always programmed and worked in this location in association with the surrounding community.
Its transformation is an opportunity to make this building a design model responding to current challenges in terms of artistic production and performance, ecological issues, and impact on the community. It is designed to operate on a single floor, from inside the theater to the street. Removable bleachers allow for a doubling of the number of seats and great configuration flexibility. The theater’s forecourt has been completely redesigned with the street in cooperation with city authorities. This project’s ecology is based on the transformation of an existing building but relies above all on its team, skills, and audience. It is reflected in the choice of environmentally friendly materials as well as in the use of low-energy, efficient technical equipment.