















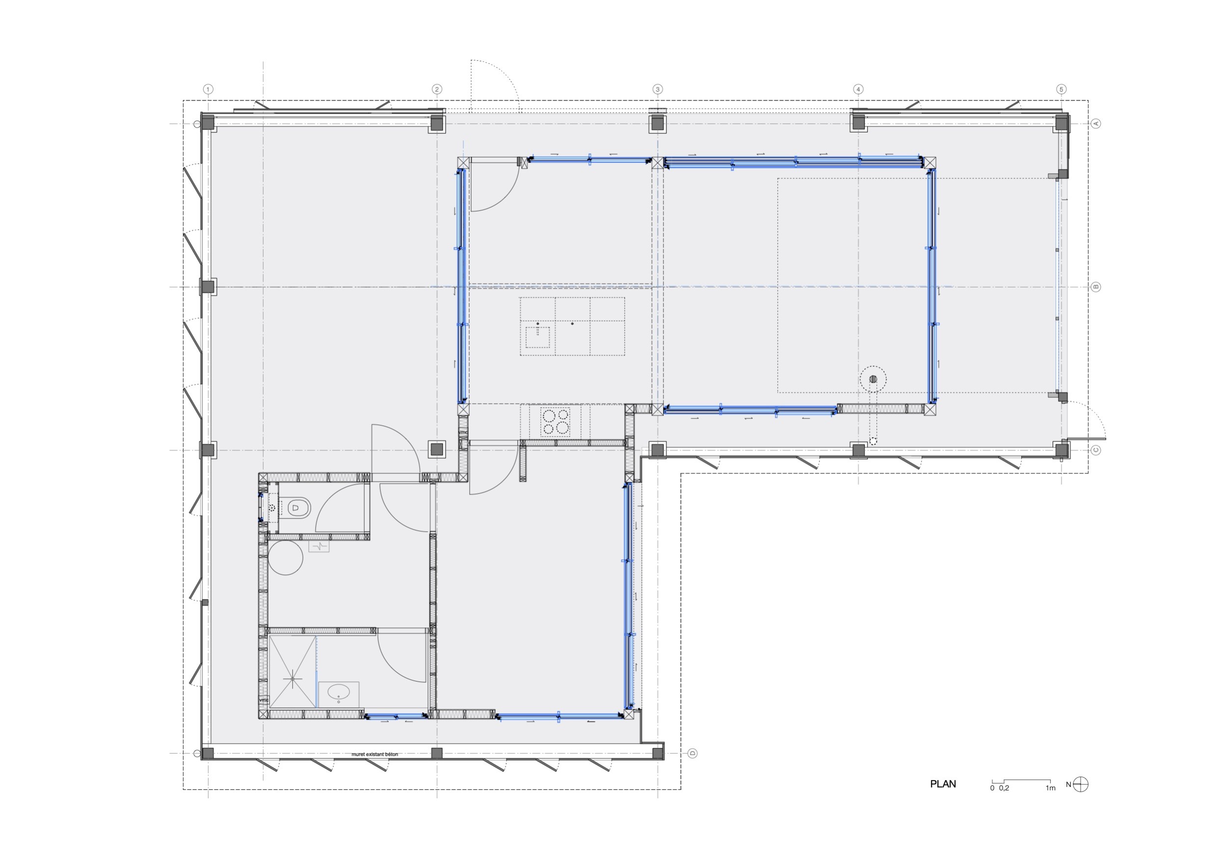
Transformation d’un vieux séchoir à tabac situé au cœur des vignes du Lot-et-Garonne. Le souhait de la cliente : l’habiter et pouvoir cuisiner face au paysage.
Quelques principes de base : le juste nécessaire avec une grande verrière installée dans la nef du séchoir ; le moins de matière pour avoir la vue la plus ouverte, garder la hauteur, faciliter le mouvement et faire des économies.
Seuls les montants qui tiennent la maison sont conservés : ceux du séchoir, la vieille charpente, les ouvrants verticaux, la grande porte vitrée mécanisée, la structure en bois et en métal et les grandes baies coulissantes qui l’enveloppent. Un module en bois clair, monté comme un meuble pour la chambre et la salle de bain, est installé dans l’appentis existant, toujours face au paysage. Comme un objet précieux dans une enveloppe rustique, presque invisible depuis l’extérieur.
Le sol est continu, intérieur /extérieur. Il y a de l’espace entre la verrière et le vieux séchoir. On peut tourner autour, sortir ou entrer, tout ouvrir ou tout fermer.
La maison s’ajuste en fonction des vents et de la lumière, agréable en toutes saisons, au milieu du ciel et des vignes du Lot-et-Garonne.