




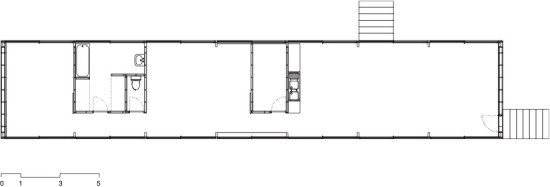
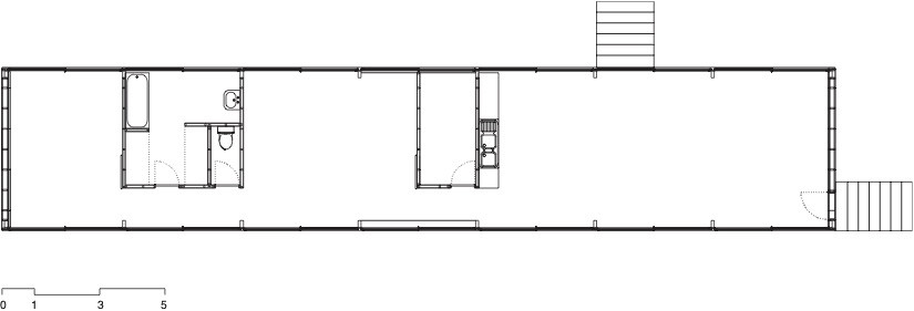
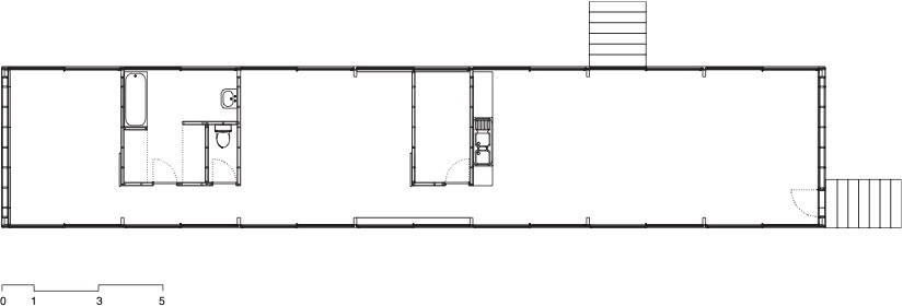
Le village de Montpeyroux offre un paysage légèrement vallonné avec des vues lointaines. Compte tenu de la pente du terrain et des contraintes budgétaires, la maison est surélevée par rapport au sol naturel. Ce projet très économique propose un principe constructif rationnel avec la structure, les murs et le sol en bois, et les façades totalement vitrées. Un rideau thermique permet d’occulter les façades et de contrôler la température. Implantée dans l’axe des maisons avoisinantes, la maison n’a aucun vis-à-vis. Sa forme allongée offre des cadrages panoramiques sur les coteaux lointains. Pour habiter cette campagne dans sa totalité, un jardin vient agrémenter la parcelle de quatre mille mètres carrés, avec un champ de fleurs composé d’une centaine d’espèces sauvages.