







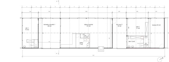
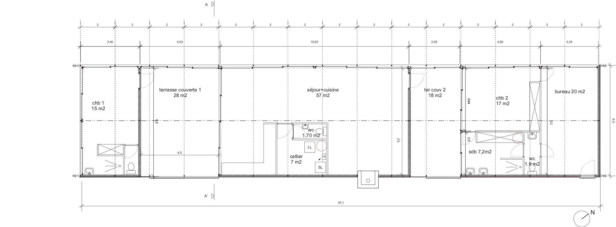
Une cliente passionnée de chevaux dispose d’une parcelle boisée en bordure d’un centre équestre. Pour qu’elle vive dans la forêt en profitant de la vue du passage des chevaux, la maison est en longueur, délicatement implantée entre les arbres et ouverte sur le paysage. Fabriquée à partir d’une serre horticole, elle est composée de trois pavillons intérieurs isolés et finis en plâtre, séparés par deux jardins d’hiver. Les jardins d’hiver créent un effet de filtre entre l’intérieur et l’extérieur de l’habitation. En hiver, ils captent l’énergie passive et chauffent les pièces de la maison. Le soir, ces pièces sont fermées et conservent la chaleur. L’été, la régulation thermique est assurée par un système automatique intelligent. Une station météo déclenche les ouvrants zénithaux à partir d’une certaine température.