









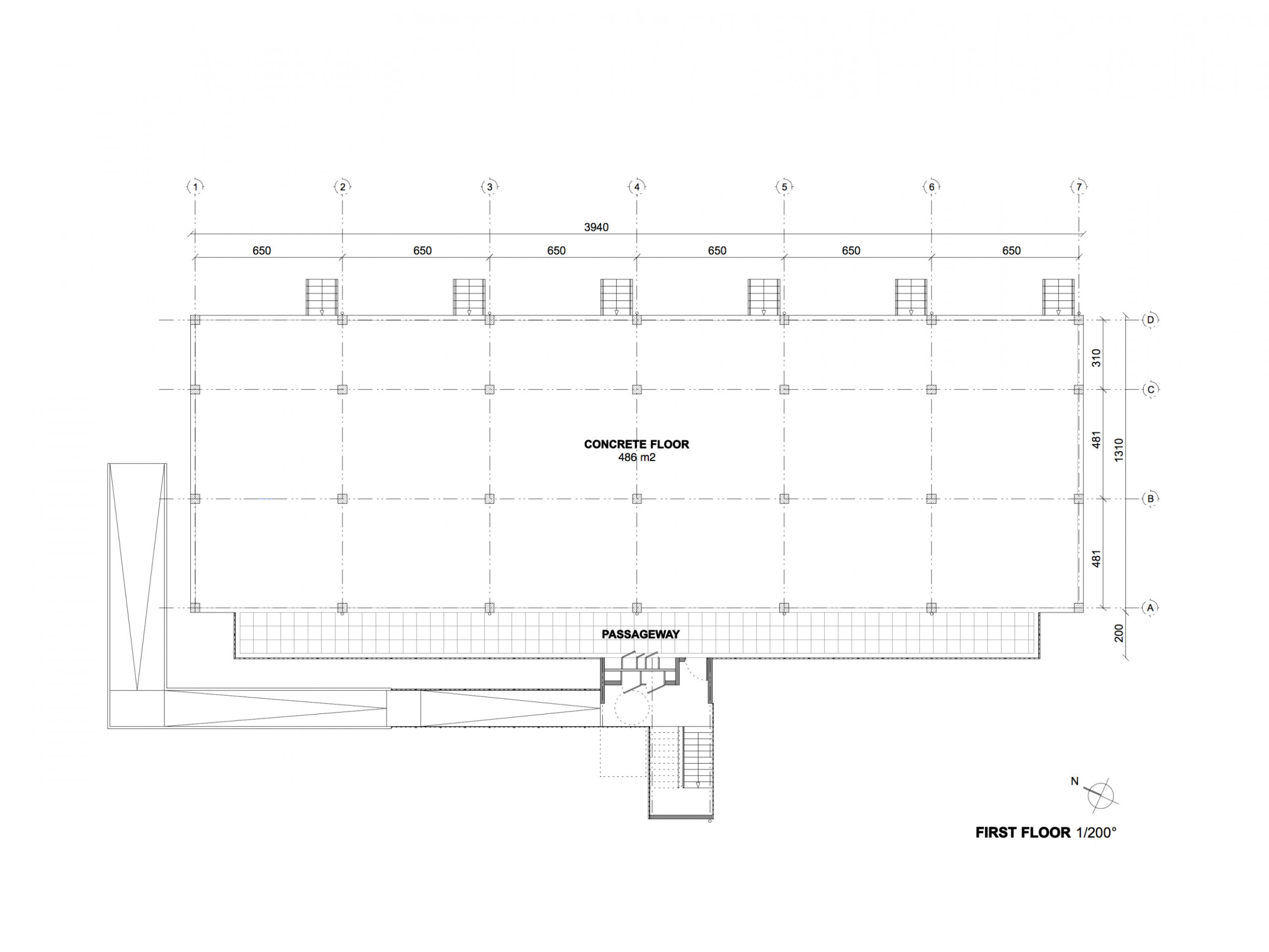
Pour enfin sortir de la standardisation du logement collectif, ce projet a pour ambition de répondre spécifiquement à la situation de chaque habitant et de chaque famille. Il est dans la continuité de l’approche structuraliste et en particulier celle de Frei Otto dans le cadre du projet Okohaus à Berlin. Ce projet, phase 2 des « Hauts Plateaux », propose deux dalles en béton superposées et distantes de six mètres en hauteur pour construire des maisons individuelles. C’est un lotissement vertical, réalisé avec une division en volumes. Selon leurs revenus et besoins, les futurs habitants feront l’acquisition de volumes à construire. Ces volumes offrent la même capacité et les mêmes droits qu’une parcelle de lotissement. Chaque habitant pourra ensuite réaliser sa maison de façon classique dans le volume acheté. Celle-ci pourra être construite de plain-pied ou sur deux niveaux. Ce n’est pas une copropriété mais un assemblage de propriétés individuelles. Les parties dites communes relèvent du domaine public et non du privé. Le logement étant une question complexe, l’innovation portée par ce projet n’est donc pas seulement architecturale mais porte sur un ensemble de disciplines liées. En amont, un travail de recherche sur plusieurs années a été mené sur le plan technique avec Lafarge Centre de Recherche, et aussi sur le plan juridique et règlementaire, avec avocats, notaires, géomètres et les services de la ville. Un règlement, détourné de celui du lotissement horizontal, a été rédigé. Sur des fonciers mieux maîtrisés, près des transports, des services de la ville, on peut imaginer construire des maisons individuelles sans devoir sortir de l’agglomération bordelaise. Le lotissement vertical est un idée simple qui permettrait de lutter contre l’étalement urbain.